Apartment movie and music
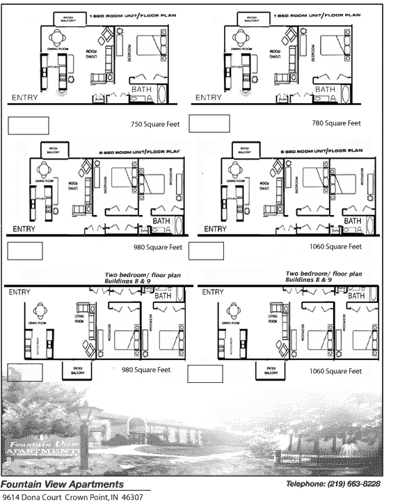
  • Fountain view apartments are the largest apartments on a comparison basis. Newer construction has downsized all of their rooms due to the cost of building. If you are looking for larger rooms, look to construction that is a little bit older and has updated their apartments. Older buildings are better built. Sound and heat insulation are better. Our buildings are bigger and better than any other place.

apartments apartment rentals apartment apartment

apartments apartment rentals apartment apartment

apartments apartment rentals apartment apartment

apartments apartment rentals apartment apartmentapartments apartment rentals apartment apartment

apartments apartment rentals apartment apartmentapartments apartment rentals apartment apartment

apartments apartment rentals apartment apartmentapartments apartment rentals apartment apartment

apartments apartment rentals apartment apartment